
Яармаг–Арцат хороолол
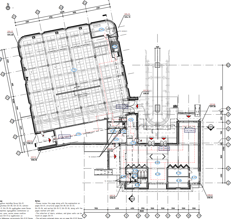
Нэгдүгээр шугамын эхлэлийн зогсоол. Удирдлагын болон цахилгаан тоног төхөөрөмжийн өрөө, худалдааны цэг, тасалбарын кассын байршил.
- Үндсэн барилга98 м² фронт
- Худалдааны цэг29 м²
- Удирдлагын өрөө—
- Цахилгааны өрөө—

Нийслэлийн иргэдийн Төлөөлөгчдийн Хурлын 2025 оны 7 дугаар сарын 8-ны 25/91 дүгээр тогтоолоор “Нийслэлийн нийтийн тээвэрт дүүжин замын тээврийг нэвтрүүлэх төсөл”-ийг хэрэгжүүлэх, түүний үйл ажиллагаа, ашиглалт, засвар үйлчилгээг хариуцан ажиллах “Улаанбаатар кабель кар” ОНТҮГ байгуулагдсан.
Монгол Улсын Засгийн газар болон Бүгд Найрамдах Франц Улсын Засгийн газар хооронд 2020 оны 5 дугаар сарын 12-нд байгуулагдсан 60.7 сая еврогийн санхүүгийн хэлэлцээрийн хүрээнд хэрэгжиж буй уг төсөл нь Улаанбаатар хотын шинэ төрлийн нийтийн тээврийн системийн эхлэл болж байна.

Эхний ээлжид Яармаг–Арцат, Өнөр хороолол чиглэлийн 4.2 км нэгдүгээр шугам, дараагийн ээлжид 2.8 км хоёрдугаар шугамыг ажиллуулна.

Үе шат 01 ба 02 — Улаанбаатар хотын дүүжин замын ерөнхий схем
Дугуй, тэргэнцэртэй зорчигчдод зориулсан хүртээмжтэй, халдаг, цэвэрлэгдэж байх суудалтай кабин. Хаалга нээгдэж зорчигчдыг буулгахдаа аяллын хурд хэвээр байж 0.26 м/с хүртэл удаашран зорчигчдыг саадгүй буулгана.
Шилэн фасадтай, орчин үеийн архитектуртай зогсоолууд нь зорчигчдод тав тухтай орчинг бүрдүүлэхийн зэрэгцээ худалдаа, үйлчилгээний талбайтай.

Нэгдүгээр шугамын эхлэлийн зогсоол. Удирдлагын болон цахилгаан тоног төхөөрөмжийн өрөө, худалдааны цэг, тасалбарын кассын байршил.

Нэгдүгээр шугамын эцсийн зогсоол. Өргөн фойетой, авто тээврийн зогсоол шууд залгасан.
Хэлэлцээр байгуулсан өдрөөс барилга угсралт, ашиглалт хүртэлх гол үе шатууд.
Монгол Улс болон Франц Улсын Засгийн газар хооронд 60.7 сая еврогийн санхүүгийн хэлэлцээр байгуулагдсан.
Нийслэлийн иргэдийн Төлөөлөгчдийн Хурлын 25/91 дүгээр тогтоолоор төслийг хэрэгжүүлэх шийдвэр гарсан.
Нийслэлийн Засаг даргын А/1490 захирамжаар 57 орон тоотой бүтэц зохион байгуулалт батлагдсан.
Үйл ажиллагаа, ашиглалт хариуцсан менежер болон оператор баг үйл ажиллагаагаа эхлүүлсэн.
Дадлагажуулан сургах, ашиглалтын явц дахь техникийн туслалцаа, сэлбэгийн 5.9 сая еврогийн нэмэлт гэрээ.
Яармаг–Арцат / Өнөр чиглэлийн нэгдүгээр шугамын барилга угсралтын ажил 4 дүгээр улиралд дуусна.
Нэгдүгээр шугам үйл ажиллагаагаа албан ёсоор эхлүүлж, иргэдэд үйлчилгээ үзүүлж эхэлнэ.
Улаанбаатар хотын авто замын дундаж хурд оргил цагт 8–14 км/ц болж буурдаг. Дүүжин тээвэр нь 21 км/ц тогтмол хурдтай, 2,320 хүн/ц чадалтай шинэ агаарын маршрут болно.

Шугамын дагуух зогсоолууд нь нийтийн тээврийн МЕТРОны зангилаа, олон нийтийн соёл амралтын төв, орон сууцны хороолол, худалдаа үйлчилгээний бүсүүдтэй холбогдсон цогц TOD загвараар хөгжинө.
Нэгдүгээр шугамын зогсоолуудад худалдаа, үйлчилгээний талбай түрээслэх боломжтой. Өдөрт мянга мянган хүн зорчих өндөр урсгалтай байршилд бизнесээ хөгжүүлээрэй.

Нэгдүгээр шугамын эхлэлийн зогсоолд бэлтгэгдсэн худалдааны өрөө. Зорчигчид, орчны иргэдэд үйлчлэх боломжтой.

Хоол, кофе, түргэн хоол, жижиг үйлчилгээний цэгүүдэд тохиромжтой талбай.

Зогсоолын фасад болон дотор талын дижитал болон хэвлэмэл сурталчилгааны байршил.
Төрсөн өдөр, хурим, бизнес уулзалт, зочин угтах онцгой үйл явдалд зориулсан тусгай кабины захиалга. Улаанбаатар хотын панорама, агаарын аялал.
Хамтран ажиллах, хөрөнгө оруулах, түрээсийн талбай авах, хэвлэл мэдээллийн тэмдэглэлийн хүсэлтээ илгээнэ үү. Бид ажлын 3 хоногийн дотор хариу өгнө.
“Улаанбаатар кабель кар” ОНТҮГ — нийслэлийн нийтийн тээвэрт дүүжин замын тээврийг нэвтрүүлэх төсөл.